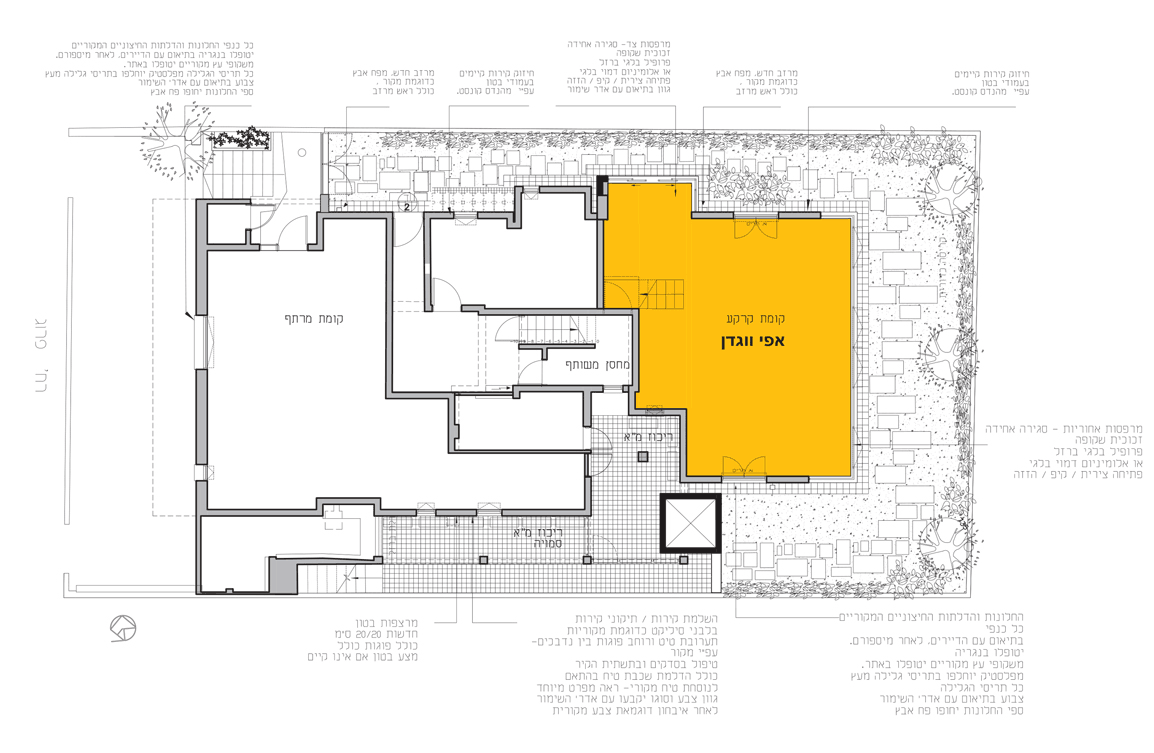
Unit3