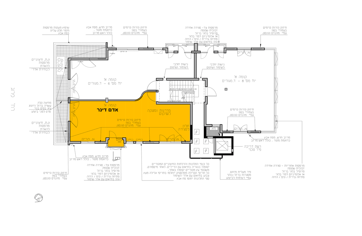
Unit8