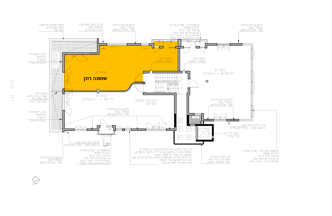
Unit9